






































3848 Echo Brook Lane Dallas, Texas 75229
List Price
$3,099,500
Bedrooms
5
Bathrooms
5 full / 1 half
Year Built
2022
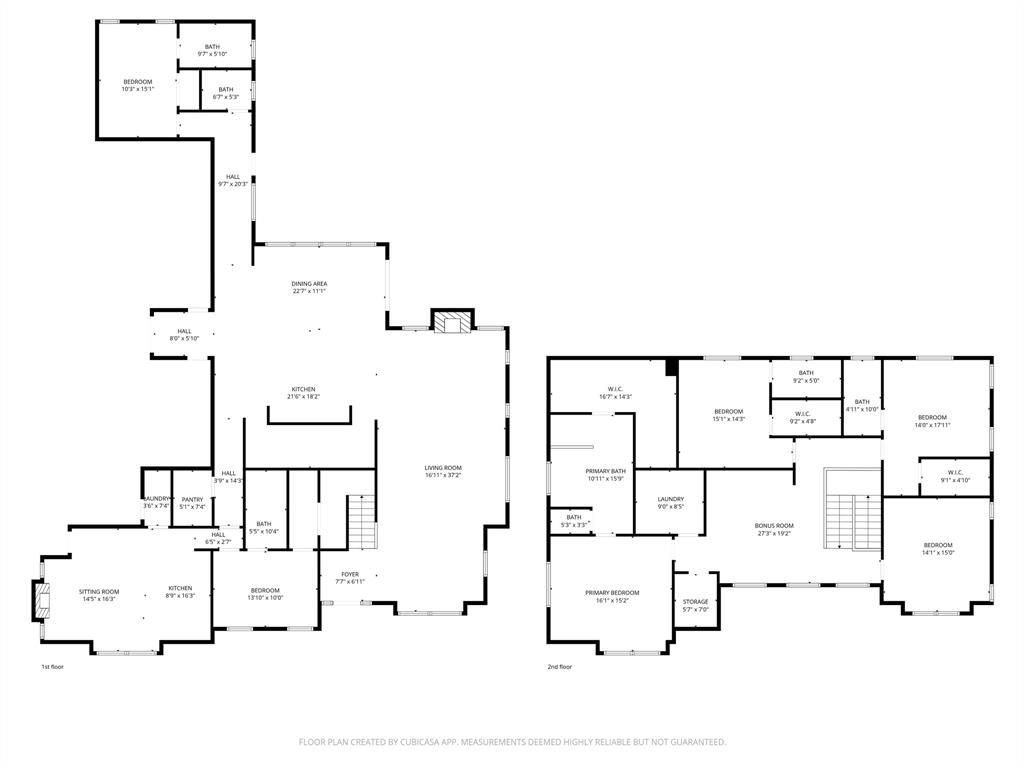
Size
4,879 sq ft
Price/sq ft
$635.27
Lot Size
23,522.40 sq ft / 0.5400 Acres
.5 to < 1 Acre
100x241
Property Type
Single Family Residence, Residential
Garage Spaces
3
Pool
Yes
MLS ID
21218248
Schools
Dallas ISD
Withers
Walker
White
Listing Description
This is more than a home, it’s a private retreat designed for exceptional living and effortless hospitality. Situated on a serene 0.6 acre double lot 100x250 in one of North Dallas’ most discreet enclaves, 3848 Echo Brook Lane is a custom estate by award-winning architect Todd Hamilton, AIA. Three key elements define its distinction. First, the setting: the majority of the property unfolds behind the home in a beautifully fenced, three-tiered backyard; lush, secluded, and designed for year-round enjoyment. A 40x20 Hamptons-style play pool anchors the grounds, complemented by a covered patio with full AV, retractable screens, in-ceiling heaters, a natural gas fire bowl, and an expansive putting green. Second, the main level is purposefully designed for gathering. The chef’s kitchen and full scullery flow seamlessly into the dining room, living room, conversation lounge, and flexible music or secondary dining space; all wrapped in floor-to-ceiling windows that flood the interiors with natural light and frame sweeping views of the landscape. Third, a fully integrated yet private ground-floor apartment offers its own high-end kitchen, living room with built-ins and fireplace, bedroom with walk-in closet, full bath, laundry, and direct garage access which is ideal for extended family, guests, or live-in support. The complete residence includes five bedrooms and 5.5 baths, finished with solid white oak floors, custom millwork, designer lighting, handmade tile, curated wall coverings, and level-4 smooth walls. Premium systems include 3x Sub-Zero refrigeration, Wolf appliances, 3x dishwashers and ovens, spray-foam insulation, dual tankless water heaters, CAT-6 wiring, and a three-zone HVAC system. A 3.5-car garage accommodates vehicles, a golf cart, and storage. An extraordinary offering where architecture, privacy, and livability converge.
Last Modified: 2026-03-29 16:11:16
